Skip de hoofdnavigatie

Tuindershof FASE 3A: Orchideentuin 2 t/m 30

Impressie Fase 3A
  • Aantal woningen 15
  • Woningtypes appartementen
  • Aantal blokken 1
  • Doelgroep Sociale huurwoningen kale huur: €700,- < €950,-
  • Status In aanbouw, opleverdatum onzeker!

Heb je vragen?

Wij helpen je graag persoonlijk.
Neem contact met ons op:

Of regel veel zelf 24/7 via ons klantportaal .
Natuurlijk kunt u ook ons contactformulier invullen.

Schermafbeelding 2026 03 26 115811

Tuindershof fase 3A: 15 appartementen

Rondom Wonen bouwt in de wijk Tuindershof een nieuw appartementengebouw met 15  woningen.

Let op: De opleverdatum is uitgesteld omdat er momenteel nog geen stroomaansluiting is.

Zodra de stroom is gerealiseerd, verwachten wij naar alle waarschijnlijkheid in juli 2026 de sleutels te kunnen uitreiken. Dit kunnen wij echter pas definitief bevestigen nadat de stroomaansluiting is voltooid.

Wij houden u uiteraard op de hoogte. Voor nu is de planning helaas nog onzeker.

Lees de informatie in de Woninghandleiding Goed door voor u de woning gaat huren.

Schermafbeelding 2026 03 26 163932

English: https://translate.google.com
Copy the text from the document, paste in the left box, choose your language on the right.
العربية (Arabisch): https://translate.google.com
انسخ النص من المستند، ثم الصقه في المربع الموجود على اليسار في الموقع، واختر لغتك المفضلة من الجانب الأيمن.

Woningtypes:

De appartementen zijn er met één of twee slaapkamers en een woonkamer met open keuken.

Schermafbeelding 2026 03 26 162345
Schermafbeelding 2026 03 26 162345
Schermafbeelding 2026 03 26 133810
Schermafbeelding 2026 03 26 133848

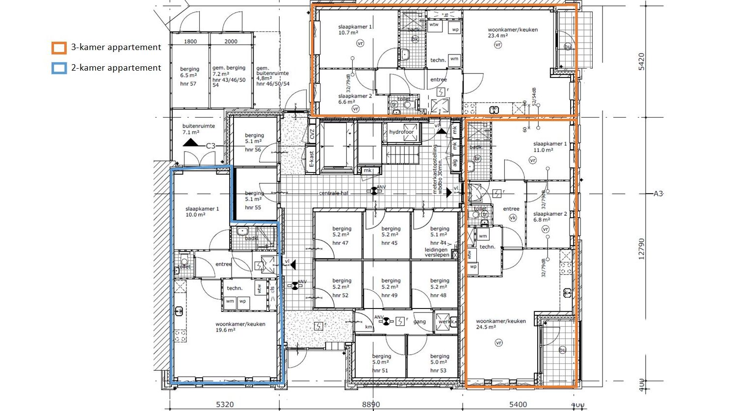
Indeling gebouw:

Het gebouw telt vier woonlagen (drie verdiepingen). In het midden bevindt zich de centrale kern met een trap en lift.

Op de verdiepingen bevinden zich per bouwlaag vier woningen. Op de begane grond ligt de hoofdentree met een hal en de bergingen (van de 3-kamerwoningen). Daarnaast zijn er op de begane grond drie woningen.

Hieronder ziet u de plattegrond van de begane grond en de 1e en 2e verdieping.

Fase 3A BG
Fase 3A 1e en 2e V

Filmpjes appartementen (linkjes onder de afbeelding)

https://www.youtube.com/@RondomWonenbouw

Let op: De beelden zijn gemaakt tijdens de bouw. De woning is nog niet gereed: er ligt nog bouwmateriaal in de ruimtes, het is stoffig en donker, en de afwerking is nog niet compleet.

De filmpjes zijn bedoeld om een algemene indruk van de ruimtes te krijgen:
Bij oplevering bevat de woning:
    • Een eenvoudig keukenblok (3 onder en 3 bovenkastjes, spoelbak met kraan en een RVS keukenblad)
    • Een badkamer met tegelwerk, wasbak en douchekraan
    • Een betegeld toilet, met staand toilet
    • Natuurstenen vensterbanken bij de raamkozijnen
    • Afgewerkte plafonds met spuitwerk

De woning wordt verder kaal opgeleverd. U dient zelf te behangen, schilderen en een vloer te plaatsen.

Plattegronden:

Onder documenten kunt u de verhuur tekeningen downloaden

Type A: 2-Kamerwoning, gezamelijke fietsenberging, geen buitenruimte
  • let op: De begane grond is kleiner (43m2) en heeft wel een buitenruimte
Fase 3 type A2
 
Type B: 3-Kamerwoning komt 3 keer voor,
    • Let op: de top verdieping heeft schuine wanden en is daarom iets kleiner.
Fase 3A type B
 
Type C: 3-Kamerwoning komt 4 keer voor.
Fase 3A type C

 

Type D: 3-Kamerwoning komt 4 keer voor
    • Let op de Top verdieping is iets kleiner door het schuine dakvlak.
Fase 3A type D

Ontwikkelaar: BPDWaaijer Projectrealisatie en Kavel Vastgoed
Makelaar: BPD en WVK Makelaars
Architect: Van Manen

Warmtepomp van Eteck:

Alle woningen zijn gasloos. U huurt de woning van Rondom wonen maar de warmtepomp is van Eteck, Deze kosten komen dus nog boven op de huurprijs.
Het contract met Eteck is verplicht, dus u betaalt:
Let op: bijna energieneutraal betekent dus niet kostenneutraal. Zie het tarievenblad van Eteck
 

Deel dit artikel: